Annonce globale
Annonce globale

Annonce globale

BREUIL-BOIS-ROBERT
78930 - Yvelines

/
/
/
/
/
/
/
/
/
/
Description

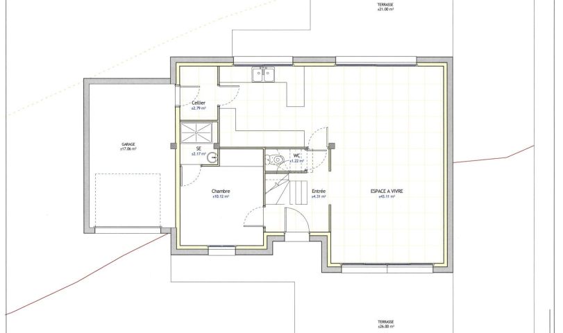
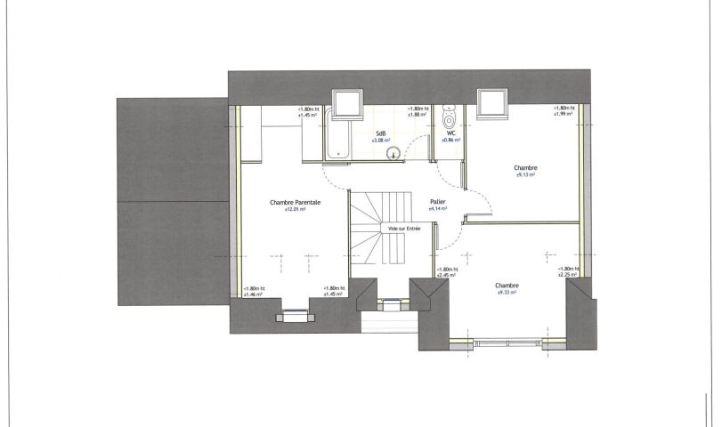
A BREUIL-BOIS-ROBERT sur un terrain de 752 m², LES MAISONS LELIÈVRE vous propose de réaliser cette maison neuve d'une surface de 102 m² habitables avec 4 chambres. LES MAISONS LELIÈVRE vous propose les prestations suivantes : - Plan sur-mesure et personnalisé de 2 à 6 chambres - Mode de chauffage au choix - Grands choix d'équipements et de prestations - Matériaux de qualité selon les normes en vigueur - Accompagnement dans le choix et l’acquisition du terrain - Construction conforme à la nouvelle RE 2020 Informations du terrain : Terrain plat avec une belle façade. Accès A13 à 5 minutes. Gare de Mantes/St Lazare à 10 mn. Demandez une étude gratuite et personnalisée de votre projet de construction !

Prix

404 000 €

Votre constructeur Maisons Sésame répond à toutes vos questions pour un projet de construction de maison : quel terrain ? comment choisir ses plans de maison ?, quel financement (PTZ) ? Quels sont les coûts de raccordements et de frais de notaire ? Nos agences d’Ile de France sont à votre disposition dans le 77 (Bussy Saint Georges, Chelles, Dammarie les Lys, Meaux), le 78 (Coignières, Mantes la Jolie), le 91 (Juvisy sur Orge, La Ville du Bois, Villejust), le 93 (Aulnay sous Bois), le 94 (Ormesson sur Marne) et le 95 (Baillet en France, Cormeilles en Parisis, Eaubonne).